Work
Press
About
Contact
Garth Britzman
Architecture + Design + Fabrication
Work
Press
About
Contact
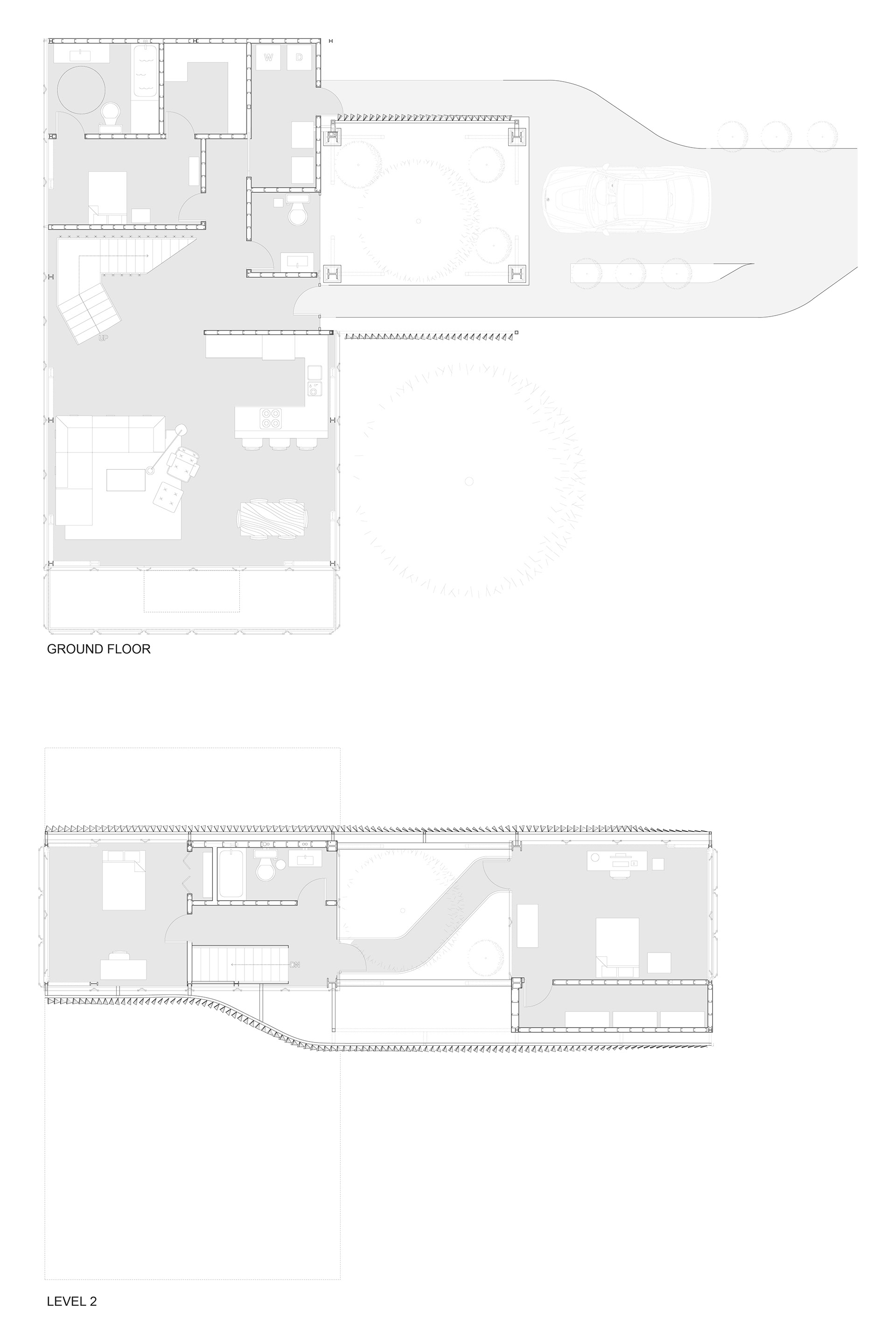
Pacific Palisades Residence
2015
Section Perspective
Wall Detail
Plan Detail
Foundation Detail
↑
Back to Top